3pok, 48met, ul. Szpitalna PIWNICA/WINDA (Wrocław)
Cena brutto:
539000
zł
Adres
Dolnośląskie
Wrocław
Wrocław
zobacz na mapie
Kontakt
3 Pokoje z Widokiem na Sky Tower | Centrum Wrocławia
Na sprzedaż wyjątkowe, jasne mieszkanie 3-pokojowe o powierzchni 48 m²,
położone przy ul. Szpitalnej – zaledwie 15 minut spacerem od Rynku!
Z okien roztacza się piękny widok na Sky Tower i panoramę miasta.
O mieszkaniu
Lokal znajduje się na 7. piętrze w zadbanym budynku z windą.
Mieszkanie jest ustawne, z dużym potencjałem aranżacyjnym,
idealne zarówno do zamieszkania, jak i pod wynajem.
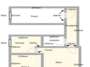
Rozkład pomieszczeń:
Ściana między kuchnią a pokojem nr 2 jest działowa,
co umożliwia łatwe wydzielenie trzeciego, niezależnego pokojui uzyskanie pełnego rozkładu.
Do mieszkania przynależy piwnica.
Stan i wyposażenie
Lokalizacja
Świetna, centralna część Wrocławia – spokojna,
zielona okolica z pełną infrastrukturą i doskonałą komunikacją miejską.
W pobliżu:
Atuty nieruchomości
✅ widok na Sky Tower i panoramę miasta,
✅ centrum Wrocławia – wszędzie blisko,
✅ możliwość uzyskania pełnego rozkładu 3 pokoi,
✅ zadbany budynek po remoncie elewacji,
✅ wszystkie koszty zawarte w cenie (poza PCC).
Dane podstawowe
Zapraszam do obejrzenia mieszkania na żywo!
To idealna propozycja dla osób, które cenią komfort życia w centrum,
piękny widok na Sky Tower i pewną lokalizację inwestycyjną.
Andrzej
tel.724 772 717
[email protected]
Agencja Nieruchomości HOME EXPERT
ul. Inżynierska 49 / U25
(na parterze w biurowcu CORTE VERONA)
53-228 Wrocław
www.homeexpert.pl/kontakt
Numer oferty: 1808/3584/OMW
Na sprzedaż wyjątkowe, jasne mieszkanie 3-pokojowe o powierzchni 48 m²,
położone przy ul. Szpitalnej – zaledwie 15 minut spacerem od Rynku!
Z okien roztacza się piękny widok na Sky Tower i panoramę miasta.
O mieszkaniu
Lokal znajduje się na 7. piętrze w zadbanym budynku z windą.
Mieszkanie jest ustawne, z dużym potencjałem aranżacyjnym,
idealne zarówno do zamieszkania, jak i pod wynajem.
Rozkład pomieszczeń:
- salon (16 m²) – przejściowy, połączony z kuchnią i pokojem nr 2,
- pokój nr 1 – 9 m²,
- pokój nr 2 – 7 m²,
- kuchnia – 6 m²,
- łazienka – 5 m²,
- przedpokój.
Ściana między kuchnią a pokojem nr 2 jest działowa,
co umożliwia łatwe wydzielenie trzeciego, niezależnego pokojui uzyskanie pełnego rozkładu.
Do mieszkania przynależy piwnica.
Stan i wyposażenie
- budynek po odnowieniu elewacji w 2023 roku,
- okna PCV wymienione w 2013 r.,
- miedziana instalacja elektryczna,
- mieszkanie zadbane, czyste, gotowe do własnej aranżacji.
Lokalizacja
Świetna, centralna część Wrocławia – spokojna,
zielona okolica z pełną infrastrukturą i doskonałą komunikacją miejską.
W pobliżu:
- przystanki tramwajowe i autobusowe,
- sklepy, piekarnia, apteka, siłownia,
- tereny spacerowe i ścieżki rowerowe,
- do Rynku tylko 15 minut pieszo!
Atuty nieruchomości
✅ widok na Sky Tower i panoramę miasta,
✅ centrum Wrocławia – wszędzie blisko,
✅ możliwość uzyskania pełnego rozkładu 3 pokoi,
✅ zadbany budynek po remoncie elewacji,
✅ wszystkie koszty zawarte w cenie (poza PCC).
Dane podstawowe
- Powierzchnia: 48 m²
- Piętro: 7 (z windą)
- Do mieszkania przynależy piwnica
- Miesięczny koszt utrzymania: ok. 900 zł
Zapraszam do obejrzenia mieszkania na żywo!
To idealna propozycja dla osób, które cenią komfort życia w centrum,
piękny widok na Sky Tower i pewną lokalizację inwestycyjną.
Andrzej
tel.724 772 717
[email protected]
Agencja Nieruchomości HOME EXPERT
ul. Inżynierska 49 / U25
(na parterze w biurowcu CORTE VERONA)
53-228 Wrocław
www.homeexpert.pl/kontakt
Numer oferty: 1808/3584/OMW
Informacje dodatkowe do ogłoszenia:
Sprzedam
ID: 17793
...

Dla Dzieci
Dom i Ogród
Elektronika
Motoryzacja
Muzyka i Edukacja
Nieruchomości
Noclegi
Oddam za darmo
Praca
Rolnictwo
Sport i Hobby
Transport
Ubrania / Moda
Usługi
Zamienię
Zwierzęta





