2pok, 23met, Okolice Iwana Pawłowa PO REMONCIE (Wrocław)
Cena brutto:
355000
zł
Adres
Dolnośląskie
Wrocław
Wrocław
zobacz na mapie
Kontakt
OKAZJA | Przytulne mieszkanie po adaptacji lokalu usługowego – blisko centrum
Na sprzedaż kompaktowe mieszkanie o funkcjonalnym układzie, z dogodnym
dostępem do komunikacji miejskiej, w pobliżu parku oraz nowoczesnych
osiedli.
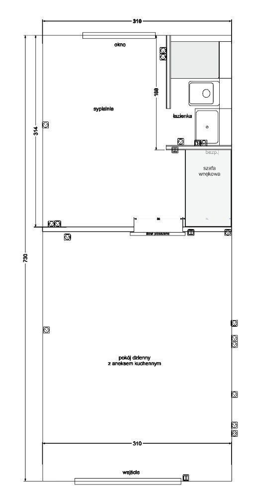
Mieszkanie składa się z:
Lokal został zaadaptowany z lokalu usługowego i urządzony z myślą o
wygodzie codziennego życia – pomimo niewielkiego metrażu, wnętrze jest
dobrze rozplanowane i zapewnia komfortowe warunki do zamieszkania. W
przedpokoju znajduje się pojemna szafa wnękowa, która pomieści wszystkie
niezbędne rzeczy, w tym sprzęty gospodarcze.
Stan techniczny:
CENA: 355 000 zł
Interesuje Cię zakup tego mieszkania?
ZADZWOŃ! 724 773 779 (tel. preferowany - zawsze dostępny)
Agent prowadzący : Piotr Ogłaza
e-mail: [email protected]
Agencja Nieruchomości HOME EXPERT
ul. Inżynierska 49 / U25 (na parterze w biurowcu CORTE VERONA)
53-228 Wrocław www.homeexpert.pl/kontakt
Numer oferty: 19957/3584/OMS
Na sprzedaż kompaktowe mieszkanie o funkcjonalnym układzie, z dogodnym
dostępem do komunikacji miejskiej, w pobliżu parku oraz nowoczesnych
osiedli.
Mieszkanie składa się z:
- pokoju dziennego z aneksem kuchennym,
- osobnej sypialni,
- łazienki z prysznicem.
Lokal został zaadaptowany z lokalu usługowego i urządzony z myślą o
wygodzie codziennego życia – pomimo niewielkiego metrażu, wnętrze jest
dobrze rozplanowane i zapewnia komfortowe warunki do zamieszkania. W
przedpokoju znajduje się pojemna szafa wnękowa, która pomieści wszystkie
niezbędne rzeczy, w tym sprzęty gospodarcze.
Stan techniczny:
- mieszkanie po remoncie, nie wymaga dodatkowych nakładów finansowych,
- nowa instalacja elektryczna (z możliwością podłączenia siły),
- łazienka wykończona od podstaw,
- ogrzewanie miejskie i ciepła woda z sieci,
- meble oraz wyposażenie kuchni w cenie.
- osobne wejście z poziomu chodnika (brak schodów),
- spokojne sąsiedztwo,
- możliwość przechowywania roweru na klatce schodowej.
CENA: 355 000 zł
Interesuje Cię zakup tego mieszkania?
ZADZWOŃ! 724 773 779 (tel. preferowany - zawsze dostępny)
Agent prowadzący : Piotr Ogłaza
e-mail: [email protected]
Agencja Nieruchomości HOME EXPERT
ul. Inżynierska 49 / U25 (na parterze w biurowcu CORTE VERONA)
53-228 Wrocław www.homeexpert.pl/kontakt
Numer oferty: 19957/3584/OMS
Informacje dodatkowe do ogłoszenia:
Sprzedam
ID: 16960
...

Dla Dzieci
Dom i Ogród
Elektronika
Motoryzacja
Muzyka i Edukacja
Nieruchomości
Noclegi
Oddam za darmo
Praca
Rolnictwo
Sport i Hobby
Transport
Ubrania / Moda
Usługi
Zamienię
Zwierzęta








