2pok, 60met, Okolice Grabiszyńskiej BALKON/PIWNICA (Wrocław)
Cena brutto:
650000
zł
Adres
Dolnośląskie
Wrocław
Wrocław
zobacz na mapie
Kontakt
Na sprzedaż przestronne/rozkładowe i oryginalnie wysokie mieszkanie w kamienicy. Mieszkanie zlokalizowane jest w bocznej, cichej i spokojnej ulicy od ulicy Grabiszyńskiej.
--- Nieruchomość ma powierzchnię 60 m2 i składa się z dwóch w pełni rozkładowych pokoi- Z racji na układ pomieszczeń mamy bogate możliwości aranżacyjne.
W
mieszkaniu można zrobić dodatkowy trzeci pokój z osobną kuchnią albo
otworzyć kuchnie aby powstała duża przestrzeń salonu z aneksem kuchennym
i dalej korzystać z trzech pokoi.
jak wspomniałem, Układ mieszkania stwarza bardzo bogate możliwości aranżacyjne. ---
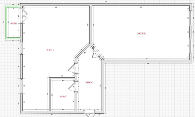
w
zdjęciach są zamieszczone rzuty mieszkania , pierwszy przedstawia
aktualny rozkład a kolejne to już możliwości jakie zapewnia nam
mieszkanie.
Mieszkanie znajduje się na trzecim piętrze czteropiętrowej dobrze zachowanej oraz zadbanej przez mieszkańców kamienicy.
AKTUALNY
UKŁAD POMIESZCZEŃ: - przedpokój - kuchnia - łazienka - pokój 15m2 -
pokój 23m2 + balkon ( wychodzący na zielone podwórko) Dodatkową
powierzchnię przynależną do mieszkania stanowi piwnica.
Ogrzewanie: MIEJSKIE
Instalacja elektryczna: nowa miedziana
Instalacja wodno-kanalizacyjna: nowa
Okna: nowe PCV - Okna mieszkania wychodzą na zielony dziedziniec
Na podłogach: W większości panele natomiast pod nimi drewniana podłoga.
Wysokość pomieszczeń: Oryginalnie 3.10 m dzięki czemu mamy możliwość zrobienia Antresoli i powiększenia przestrzeni.
Na ten moment w mieszkaniu jest sufit podwieszany.
Klatka schodowa zadbana, czysta i schludna, w ostatnim czasie był wymieniany główny pion elektryczny, klatka była odświeżana.
Piony wodno-kanalizacyjne zostały wymienione w całym budynku. Po remoncie jest również dach.
- na temat PRZYSZŁYCH prac informacji udzielę na miejscu.
LOKALIZACJA:
okolice ul. Grabiszyńskiej, Doskonała lokalizacja blisko centrum
miasta, wygodny i łatwy dostęp do wielu strategicznych części Wrocławia.
Bliskość przystanków komunikacji miejskiej zapewnia łatwy dostęp na
przykład do Rynku, który znajduje się 2,5 km od mieszkania. Bezpośrednio
przy budynku znajduje się pawilon handlowy co zapewnia wygodny dostęp
do licznych sklepów
Ekspozycja: Mieszkanie jest dwustronne, okna wychodzą na wschód i zachód dzięki czemu mieszkanie jest naturalnie jasne.
Dodatkowo jest zgromadzony Fundusz Remontowy , a 90% mieszkań została już wykupiona.
Oferta na Wyłączność./ Cena do Negocjacji
Zapraszam na bezpłatną prezentację Dawid Bachlaj.
Tel: 795 700 003
Godz. 7.30 - 22.30
19663/3584/OMS
Informacje dodatkowe do ogłoszenia:
Sprzedam
ID: 13262
...

Dla Dzieci
Dom i Ogród
Elektronika
Motoryzacja
Muzyka i Edukacja
Nieruchomości
Noclegi
Oddam za darmo
Praca
Rolnictwo
Sport i Hobby
Transport
Ubrania / Moda
Usługi
Zamienię
Zwierzęta








